首页>产品与服务>门式起重机>5t~500t双梁吊钩门式起重机

5t~500t双梁吊钩门式起重机

一、 产品概述

1、5t-500t双梁吊钩门式起重机适用于露天货场,进行一般的装卸、吊装及起重搬运工作。

2、大小车运行机构采用三合一减速机,方便维护。

3、大风报警、防断轴、防倾翻等各种安全措施齐全。

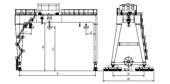
二、产品简图与技术规格(400/30~500/80t)


标签: