首页>产品与服务>门式起重机>MH型3~16t电动葫芦门式起重机(箱型式)

MH型3~16t电动葫芦门式起重机(箱型式)

一、 产品概述

1、 MH型电动葫芦门式起重机与CD1、MD1等型号的电动葫芦配套使用,是一种有轨运行的中小型起重机。

2、 适用起重量3-16吨,适用跨度12-30米,工作环境-20℃- 40℃内。

3、 本产品为一般用途起重机,多用于露天场所及仓库的装卸或抓取物料。

4、 本产品有地面操纵和室内操纵两种形式。

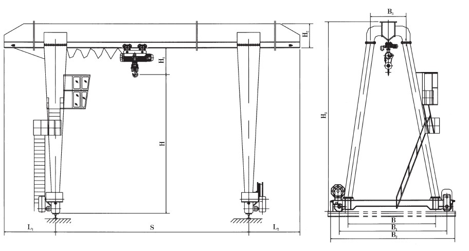
二、产品简图与技术规格(10t)


标签: